
























Masterplan urbanístico: del Puerto-Sardin Arquitectos
Diseño de piezas urbanas y sectores: del Puerto-Sardin Arquitectos
Diseño de Identidad y Comunicación: Estudio Zky-Sky
Años 2022-2024
Jáuregui, Provincia de Buenos Aires
El desarrollo del Masterplan abarca múltiples dimensiones: la esfera de lo industrial-productivo, la articulación con la comunidad y la generación de un polo atractor de turismo
ESPÍRITU DE LA PROPUESTA
Generar un Parque Industrial Modélico, diferente a los existentes en el país. Convertirlo en un espacio productivo de gran calidad ambiental, que transforme la manera de trabajar. Invitar a las empresas y a sus trabajadores a pertenecer a un espacio con áreas y servicios compartidos en contacto con la naturaleza que brinden un mejoramiento de sus jornadas laborales
La articulación con la ciudad de Jauregui y su comunidad, con la generación de una estructura abierta, que no impacte negativamente en su contexto. Evitar tapones urbanos y convertir a esta gran área en un parque verde. Una envolvente urbana con vida cívica rodea el universo de la producción. Aportar nuevos espacios públicos provistos de equipamientos culturales y recreativos y habilitar el acceso libre y cualificado al río y al bosque.
La generación de un nuevo Polo Turístico, a partir de la construcción de un paisaje inédito, original y ecológico, con múltiples ofertas. Convertir este nuevo espacio en un lugar convocante a manera de polo atractor cultural, artístico, ecológico, gastronómico y educativo.
EL VERDE COMO PROTAGONISTA: ARQUITECTURA DE SOMBRAS
• generar un proceso de forestación en cada lote en las áreas no construibles
• forestación en la totalidad de las calles y en la costanera pública
• arquitectura de sombras a partir del empleo de pérgolas cultivadas que configuran recorridos públicos de sombra, umbráculos con lugares de encuentro y descanso y protección a los estacionamientos de las empresas
• huertas colectivas en espacios públicos
• vegetación nativa que se adapta al clima y al territorio y atrae pájaros y mariposas
PROGRAMAS HÍBRIDOS: ENVOLVENTE CÍVICA
• múltiples programas para aportar química urbana, trabajo, cultura, recreación, vivienda, turismo
• la máquina de producir rodeada de una envolvente urbana con vida cívica
• se humaniza el paisaje, moderando el impacto de las industrias
• plantas bajas vitales con usos variados y convocantes
POROSIDAD URBANA: TERRITORIO PERMEABLE
• territorio posible de ser atravesado por la comunidad
• el espíritu de entidad abierta genera aceptación de los habitantes de Jauregui y habilita la inclusión del turismo por constituir una propuesta inédita, original y convocante
• los nuevos programas propuestos son atractores del público externo: huertas colectivas, gastronomía orgánica, contemplación de la naturaleza, etc.
PARQUE INDUSTRIAL: GENERACIÓN DE UN PAISAJE AMABLE
• los edificios producen energía con paneles fotovoltaicos
• gestión sustentable y responsable del agua
• se proponen dos colores posibles para los edificios industriales, el blanco y el color terracota, para aportar unidad y calidad al paisaje
• reglamentación a través de una normativa de los parámetros morfológicos, de uso del suelo, de materialidad, etc para la adecuación a los lineamientos del Masterplan
• edificios industriales rodeados de árboles para moderar el impacto de los volúmenes fabriles
• estacionamientos perimetrales cubiertos por pérgolas cultivadas y cerramientos diseñados con un lenguaje y materialidad normalizados, que aportan armonía y calidad al paisaje
EJES DE INTERVENCION
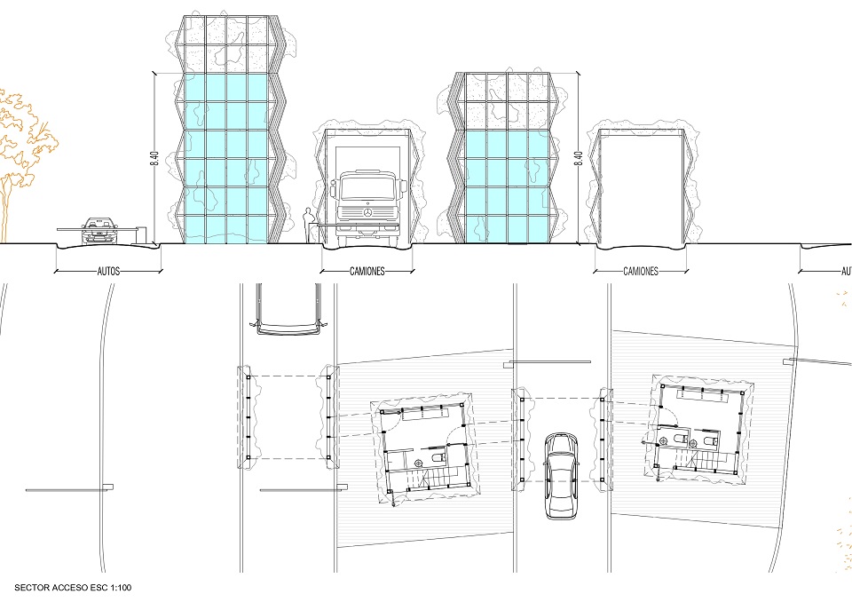
PORTAL DE ACCESO
• un Atrio Institucional antecede el acceso al Parque Industrial a partir de la construcción de una escuela y un espacio para eventos
• el acceso al Parque Industrial se señala con un edificio-hito
PLAZA DE LLEGADA
• generación de un espacio urbano cualificado y cualificante del acceso al Parque Industrial, configurado a partir de edificios con programas de servicios y comerciales destinados principalmente a las industrias
• programas con usos compartidos para las empresas: oficinas, salas de reunión, espacios recreativos, comercios, gastronomía, gimnasios, etc.
PARQUE COSTERO
• un parque lineal costero frentista al rio Luján y al bosque, abierto a la comunidad y con la naturaleza como protagonista
• conquista de la naturaleza a partir de un recorrido público con espacios para andar y espacios para permanecer
• el telón de fondo de este parque lineal lo constituye un conjunto de Hitos Arquitectónicos (torres) que jalonan el recorrido y alojan múltiples programas; y pérgolas dadoras de sombra e identidad
• la arquitectura de borde del Parque Industrial genera identidad urbana a partir de la homogeneidad, y modera el impacto de los edificios industriales
• paisaje comestible a partir de las huertas colectivas en el parque costero con ferias para encuentro entre el productor y el consumidor
PLAZA DE LA HISTORIA, REVALORIZACIÓN DEL PATRIMONIO
• hito que articula el presente y la historia
• convertir a los rastros históricos en hitos urbanos para aportar identidad a los nuevos espacios públicos
• plaza comunitaria con espacios convocantes, integrando arte, historia, arquitectura y naturaleza.
INTERVENCIÓN EN EL BOSQUE
• intervención en el bosque con pequeños pabellones-folies con programas culturales, galerías de arte, instalaciones artísticas, biblioteca, etc.
• estas sutiles intervenciones revalorizan la naturaleza sin agredirla
• las folies están coronadas por cubiertas accesibles, miradores al bosque para contemplación de su flora y su fauna
• un recorrido peatonal vincula la Plaza de la Historia con el Parque Costero, a través de un sendero que articula las folies dentro del bosque y las diversas situaciones espaciales y programáticas a lo largo de la ribera del río.
CATALOGO DE PIEZAS URBANAS
Un conjunto de piezas urbanas, materializadas en metal oxidado, aportan identidad al universo del parque industrial. Estas estructuras recuerdan las construcciones de tanques, puentes, escaleras y otros elementos típicos que podemos encontrar en los campos de la Provincia de Buenos Aires.
PORTAL DE ACCESO – TORRES VERDES
Las torres verdes colonizan el horizonte del parque. Su verticalidad contrasta con la horizontalidad de la llanura pampeana. Como esculturas en el paisaje señalan un lugar en el territorio del parque. Sus formas puras y elementales recuerdan tótems primitivos.
ESTACIONAMIENTOS – PERGOLAS CULTIVADAS
Un sistema de pérgolas cultivadas aporta protección a los estacionamientos (tanto públicos como los situados dentro de los lotes) y generan un paisaje multicolor que minimiza el impacto negativo típico de estas áreas.
PERGOLAS Y UMBRACULOS
En la totalidad de los recorridos internos del parque industrial se desarrollan pérgolas cultivadas que aportan sombra a los peatones además de cualificar las calles. En algunos cruces de calles, se materializan umbráculos que generan lugares para el descanso y el encuentro. Estos componentes aportan calidad ambiental y atmósferas amigables al conjunto.