Edificio Washington 2729

Empatizar con el contexto ladrillero

Washington 2729, barrio de Coghlan, Ciudad de Buenos Aires, Argentina
16 unidades
Superficie 2100 m2
Fecha de obra: 2014-2017
Premio Bienal Nacional AcAU 2021-2022 Gualter Colombo
Seleccionado Premio Niemeyer entre 20 edificios de América Latina
Distinción en Bienal de Arquitectura Argentina BIAAR 2018″

El edificio se encuentra en pleno barrio de Coghlan, en un contexto donde predominan las arquitecturas de ladrillo visto. Es por eso que concebimos un proyecto ladrillero que se suma a la identidad matérica del barrio.
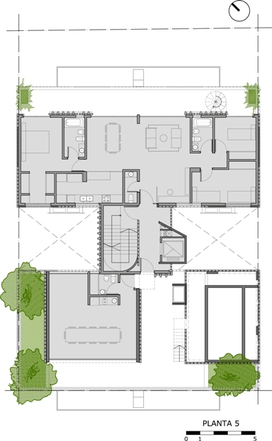
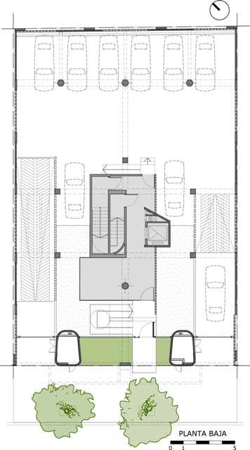
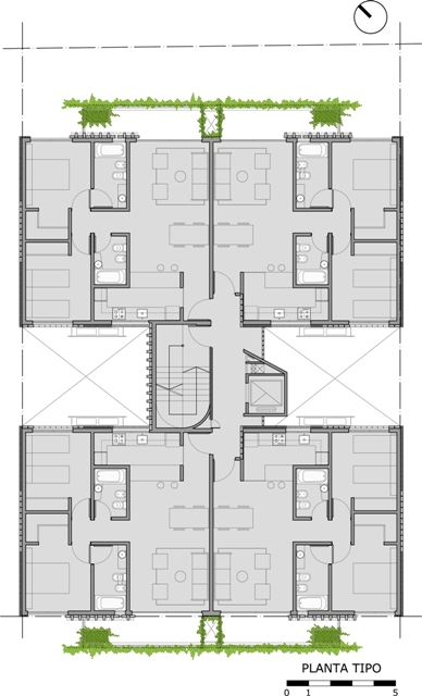
Se trata de un condominio de 14 viviendas de dos dormitorios, con algunas alternativas de integración de dos unidades en una. Se estructura a partir de dos bloques construidos en torno a dos patios y un núcleo central que se corporiza en una torre con la escalera y el ascensor. La planta baja aloja el hall de acceso, las cocheras se encuentran en el mismo nivel y en el subsuelo. El remate del edificio lo constituye una terraza privada de la unidad superior del bloque trasero, y en el frente, la cubierta es de uso común y aloja jardines con árboles, un volumen con la una pileta y el salón de usos múltiples en otro cuerpo con una singular cubierta abovedada.
La planta baja es permeable, abierta a la vereda, con un pequeño jardín desde el cual una trama metálica vertical permite que las enredaderas crezcan en el área central del edificio e incorporen vegetación a las fachadas, acrecentando el componente orgánico con el aporte de color y perfume a las expansiones de las unidades. Las tradicionales medianeras, muestra de las incoherencias de los sucesivos códigos urbanos en el tiempo, se convierten aquí en fachadas tan importantes como las otras, tratadas como un tapiz que aporta valor al paisaje urbano.
El edificio se propone como una potente masa cúbica ladrillera con un remate conformado por cuerpos que presenten sus propias particularidades y generen empatía con los coronamientos de las construcciones vecinas. Una arquitectura que procura que el habitar un edificio en un lote típico de un barrio residencial de la ciudad se convierta en una experiencia singular. Sentirse habitante de una casa en altura con una propuesta de terraza jardín común a todos los vecinos que posibilite la conexión con el skyline de la ciudad, la percepción del horizonte y el cielo.

Filosofía de la materialidad
La epidermis varía según el tipo de trabas de ladrillo en todas sus fachadas. Así se generan muros erizados con áreas cribadas para permitir la iluminación natural en el frente y contrafrente así como en la torre central. Los patios y las medianeras fueron tratados como un tapiz con paños alternados de ladrillos verticales y horizontales. La planta baja aloja el hall de acceso a manera de caja de cristal, contrastando con la masa muraria ladrillera de las medianeras y de dos cuerpos exentos de perímetro orgánico. Estos alojan los servicios y su forma amable acompaña a la acción de acceder al edificio. La propuesta de muros dobles asegura la óptima aislación térmica y los patios internos posibilitan las corrientes cruzadas en el interior de las unidades.

Category
Vivienda