Edificio Sucre 734

El hormigón convertido en piedra

2014 – Proyecto, Dirección : Levit / del Puerto – Sardin Arquitectos
Ubicación: Sucre 734/40, Bajo Belgrano, Buenos Aires, Argentina
Colaboradores: Diego Cohen, Leonardo Mancini.
Asesores: Ing. Eduardo Diner (Estructura), GNBA (Instalaciones), Cristina Le Mehauté (Paisajismo).
Superficie 4500 m2

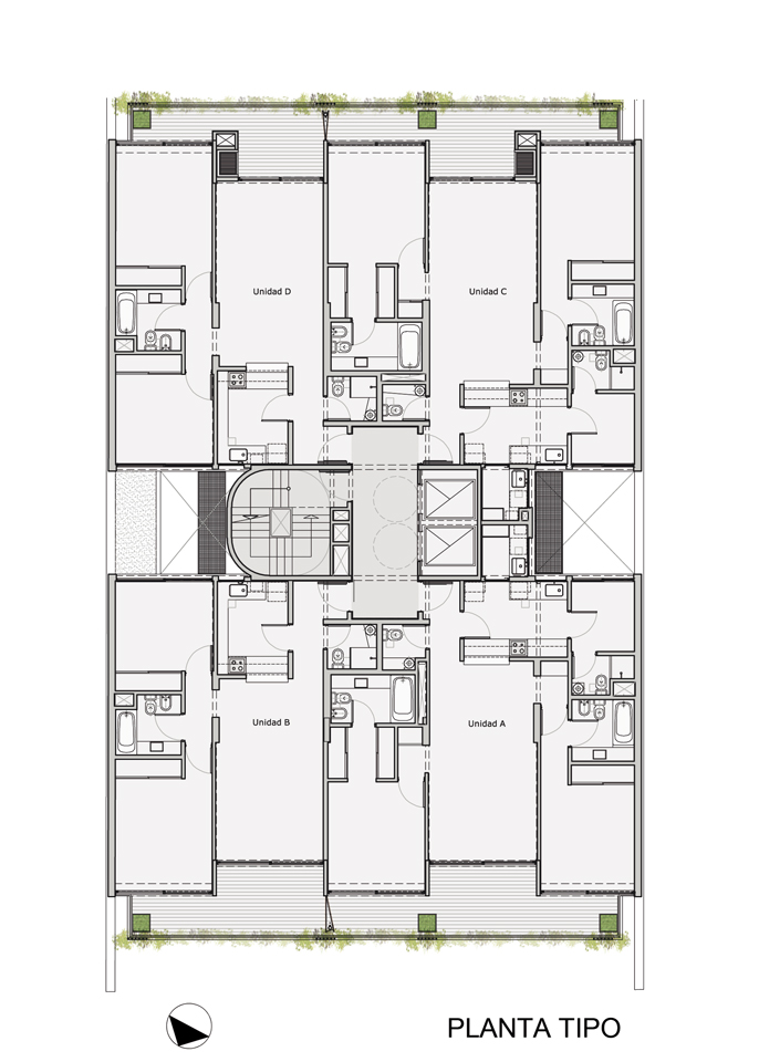
Se trata de un edificio de vivienda multifamiliar en el barrio de Bajo Belgrano en un amplio lote entre medianeras, próximo al río de La Plata.
Un basamento de altura importante contiene el hall de entrada, una caja de cristal provista con lamas de madera que regula la relación visual con la calle. Un primer filtro lo conforma un cerramiento de cristal y delgadas lamas de madera, enmarcada por un arco de hormigón martelinado. Este actúa de diafragma entre el ámbito público y el universo privado y recupera por su altura, la escala humana. El sector posterior de la planta baja es destinado a cocheras. El resto de las mismas se alojan en el subsuelo conjuntamente con las salas de maquinas.
Las siete plantas de viviendas combinan unidades de 2 dormitorios con y sin dependencias. En las expansiones, un conjunto de parasoles verticales materializados con delgadas lamas de madera y las barandas con tensores de acero conforman una membrada cultivada con enredaderas trepadoras, que con el tiempo, cubrirán parte de las fachadas. Este tamiz a la vez de proteger al edificio de la incidencia solar directa, genera un jardín vertical que enriquece las expansiones y las convierten en espacios de transición entre el exterior y el interior de las viviendas. Así el edificio queda atrapado entre dos naturalezas.
El edificio se concibe como la articulación armónica entre lo mineral representado por el hormigón visto martelinado en la totalidad de las superficies a manera de roca artificial conjuntamente con las superficies acristaladas y lo orgánico representado por las envolventes de madera y el componente vegetal. De esta forma se aporta un impacto positivo en el paisaje urbano del barrio con la generación de un clima más natural.
El octavo piso esta recedido en ambos frentes y aloja el salón de usos múltiples, parrilla, gimnasio y amplias terrazas. Todas las cubiertas que rematan el edificio son accesibles, con tierra y césped sobre el SUM y con la piscina y solárium sobre el gimnasio. Las cubiertas devienen miradores al río, al Parque 3 de Febrero y a la ciudad.

Lo impermanente, lo incompleto, lo imperfecto
Un anhelo fundamental de nuestra producción es convertir a las obras en seres vivos, que puedan crecer y enriquecerse con el devenir del tiempo y así experimentar mutaciones imprevistas, sorprendentes por su componente orgánico, cambiantes continuamente con los ciclos naturales.
Provocar la experimentación de los cambios estacionales, tan olvidados en el vértigo de la vida contemporánea. Dislocar el tiempo convencional para dejar renacer un tiempo dilatado, no pragmático donde los espacios habiliten la morosidad de la contemplación extática de lo natural. Concebir una arquitectura que reinvente el entorno positivamente y nos permita habitar más en contacto con el medio ambiente.
La búsqueda de la belleza imperfecta, impermanente e incompleta se emparenta con la estética wabi-sabi. La belleza y serenidad que aparecen con la edad. Una arquitectura que surge de un proceso natural cuyas características sean la sencillez, la modestia, la naturalidad de sus cualidades matéricas y la aspereza auténtica de las texturas. Los acabados rústicos de solados de adoquines y el martelinado de las estructuras de hormigón armado reciben el verdín y las marcas orgánicas como un don. También la presencia de la madera y el crecimiento continuo de la vegetación, permiten que el tiempo embellezca lo construido.

Category
Vivienda